Tây Tăng Long sẽ là dự án tiếp theo mà Tập đoàn Vingroup triển khai tại Tp. Hồ Chí Minh. Dự án nằm ngay mặt tiền đường Lã Xuân Oai, phường Long Trường, Quận 9 với quy mô lên đến gần 145 ha. Đây là vị trí được các chuyên gia đánh giá rất cao từ quang cảnh đến việc kết nối ngoại khu. Dự án có rất nhiều loại hình phổ biến như nhà phố, căn hộ, biệt thự… với diện tích từng sản phẩm đa dạng từ 100 – 250m2. Dự án được dẫn dắt bởi tập đoàn BĐS lớn nhất Việt Nam sẽ làm mới cho ngành BĐS tại quận 9 TP. HCM.
Thông tin tổng quan Vinhomes Tây Tăng Long
- Vị trí: Mặt tiền Lã Xuân Oai, Phường Long Trường, Quận 9, Tp. HCM.
- Diện tích: 145ha.
- Loại hình: Căn hộ chung cư, nhà phố, biệt thự cao cấp, shophouse.
- Chủ đầu tư: Tập đoàn Vingroup.
- Pháp lý: Sổ hồng lâu dài.

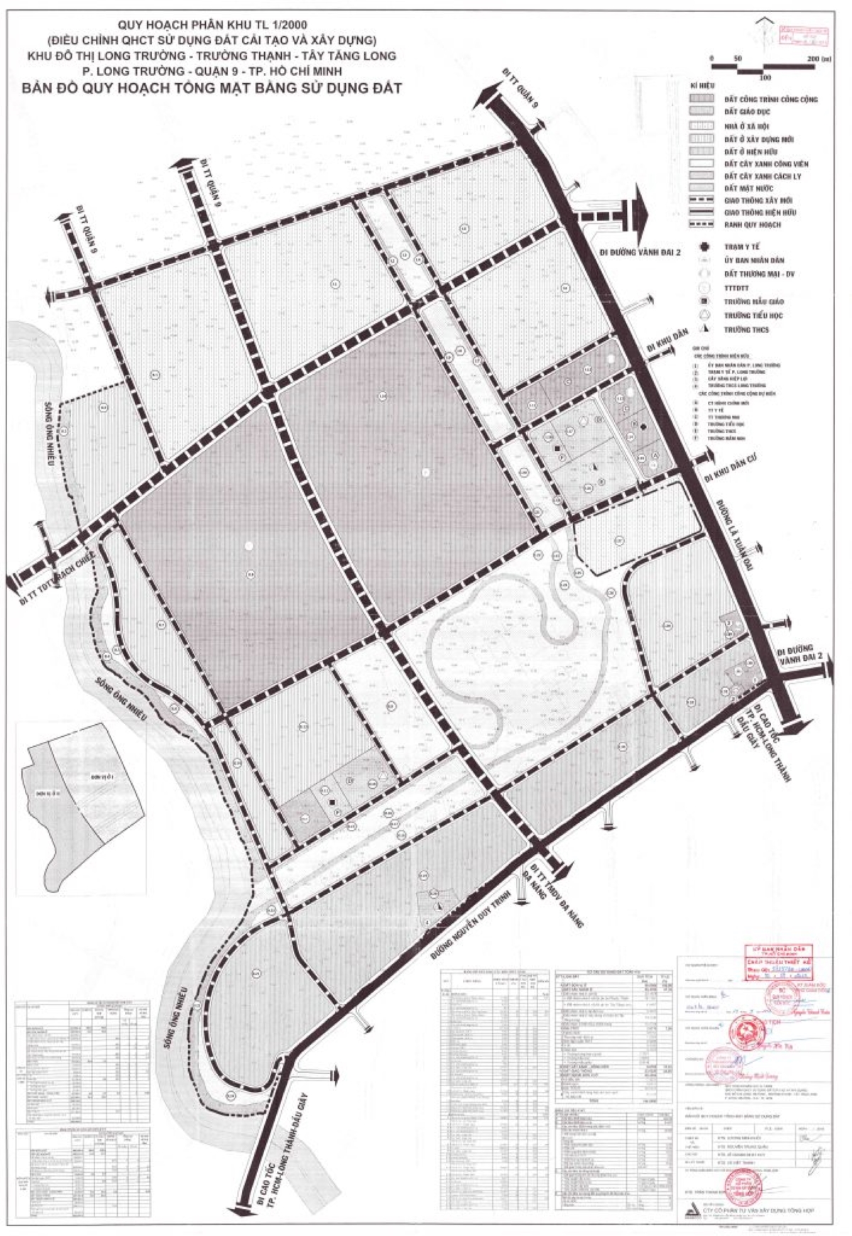
- Vị trí 2 khu Tây Tăng Long và Đông Tăng Long
Vị trí – Kết nối giao thông khu đô thị Tây Tăng Long
Dự án Vinhomes Tây Tăng Long sở hữu một vị trí vàng tại Phường Long Trường, quận 9. Đây là vị trí được các chuyên gia đánh giá là nơi đắc địa, nằm trong quy hoạch xây dựng phát triển trở thành khu kinh tế sầm uất nhất khu Đông Sài Gòn. Những vị trí tiếp giáp của Tây Tăng Long như sau:
- Phía Đông giáp với đường xã La Xuân Oai;
- Phía Đông Nam giáp với đường Nguyễn Duy Trinh;
- Phía Tây Bắc giáp khu trung tâm, dân cư quận và đầy đủ tiện ích hiện đại, đẳng cấp
Vị trí đắc địa, kết nối giao thông thuận lợi, chuỗi tiện ích hiện đại, phong phú, tất cả các công trình điện – đường – trạm đã hoàn chỉnh. Những lợi thế đó tạo nên sức hút lớn cho dự án Vinhomes Tây Tăng Long nói riêng và khu vực phường Long Trường quận 9 nói chung.

Tây Tăng Long cũng hưởng lợi thế lớn từ các công trình tiêu biểu xung quanh như:
- Đường Lã Xuân Oai
- Đường Nguyễn Duy Trinh
- Đường Nguyễn Xiển
- Đường Đỗ Xuân Hợp
- Cầu Phú Hữu…
Tiện ích Vinhomes Tây Tăng Long
Vinhomes Tây Tăng Long do tập đoàn Vingroup làm chủ đầu tư. Đây là tập đoàn bất động sản đã quá quen thuộc với người Việt Nam. Đặc biệt là đối với những khách hàng quan tâm đến ngành bất động sản trong nước. Tập đoàn Vingroup lớn mạnh đã xây dựng và phát triển nhiều dự án lớn nhỏ trên toàn quốc.
Hầu hết các dự án mà Vingroup triển khai đều là khu đô thị hiện đại. Ngoài quy mô lớn, các dự án này đều thừa hưởng những lợi thế vượt trội về tiện ích, không gian sống,… Được xem là vượt trội hoàn toàn so với các dự án cùng khu vực.
Tây Tăng Long cam kết sẽ cung cấp những dịch vụ tiện ích đẳng cấp nhất của Vingroup như:
- Hệ thống y tế Vinmec
- Trường học liên cấp Vinschool
- Trung tâm thương mại & siêu thị Vinmart
- Siêu thị điện máy Vinpro
- Chuỗi dịch vụ Vineco, Vinds,…
- Khu vui chơi trẻ em
- An ninh nghiêm ngặt 24/7, có thiết lập camera bảo vệ, thẻ từ,…
Tất cả tiện ích đều đã được kiểm định và đạt chuẩn quốc tế. Trong đó an ninh là một trong những yếu tố thu hút người dân nhất khi chọn định cư lâu dài tại các dự án của Vinhomes.
Thông tin chủ đầu tư Tây Tăng Long
Tập đoàn Vingroup có tiền thân là Tập đoàn Technocom, được thành lập vào năm 1993 tại Ukraina. Những năm đầu thế kỷ 21, Technocom trở về Việt Nam, tập trung đầu tư vào du lịch và bất động sản cùng 2 thương hiệu chiến lược đầu tiên là Vinpearl và Vincom. Vào tháng 1/2012, công ty Cổ phần Vincom và Vinpearl được sáp nhập, chính thức hoạt động với mô hình Tập đoàn với tên gọi là Vingroup – Tập đoàn Vingroup.
Tập đoàn hoạt động trọng tâm cho 3 nhóm bao gồm:
– Công nghệ – Công nghiệp
– Thương mại Dịch vụ
– Thiện nguyện Xã hội

Với mong muốn đem đến những sản phẩm – dịch vụ đạt tiêu chuẩn quốc tế, sự trải nghiệm tân tiến, hiện đại. Ở bất cứ lĩnh vực nào, tập đoàn Vingroup cũng đóng vai trò tiên phong, dẫn dắt sự thay đổi xu hướng của người tiêu dùng trên toàn quốc.
Mặt bằng thiết kế
Khu đô thị Vinhomes Tây Tăng Long xây dựng nên với mục tiêu trở thành khu đô thị kiểu mẫu ngay trung tâm của Quận 9. Mang đến những trải nghiệm hoàn hảo cho cư dân tại đây. Dự án được xây dựng đa dạng các loại hình từ 1 – 3 phòng ngủ đáp ứng tất cả nhu cầu của người dân.

Khi hoàn thành, Tây Tăng Long hứa hẹn sẽ mang đến sức sống mới và thay đổi hoàn toàn bộ mặt tại quận 9 với một chất lượng sống cao cấp. Trong bản đồ quy hoạch ta thấy: Đông Tăng Long và Tây Tăng Long nằm ở ngay trung tâm quận 9. Đi 500m hướng về phía trên theo đường Lã Xuân Oai là trung tâm hành chính mới của quận 9.
Ngoài ra khi dự án Tây Tăng Long hoàn thiện sẽ lưu thông toàn bộ tuyến đường Liên Phường tại quận 9. Điều này giúp kết nối dễ dàng giữa hai khu vực quận 9 và quận 2, giảm thiểu tải trọng cho tuyến đường Nguyễn Duy Trinh.
Giá bán Vinhomes Tây Tăng Long
Hiện giá bán của dự án Tây Tăng Long vẫn chưa được chủ đầu tư công bố cụ thể. Chúng tôi sẽ cập nhật giá bán ngay sau khi có thông tin chính thức.
Khu đô thị Vinhomes Tây Tăng Long dự kiến sẽ triển khai năm 2021. Dự án sẽ khởi động cho sự phát triển của khu vực và góp phần thu hút dân cư về đây sinh sống, lập nghiệp. Các dự án mà Vinhomes triển khai đều nhận được phản hồi tích cực của người dân lẫn giới chuyên môn. Dự án hứa hẹn sẽ là dự án thành công tiếp theo của “ông lớn” Vingroup trong năm 2021.
Xem thêm: https://dongtanglongvn.com/tien-do-du-an-dong-tang-long-quan-9/